Fitting Software - Providing Quality and Value Service - Design - Optimise - Manufacture - Manufacturing Software Solutions
Contact Us:  0411 969 437  
Home News Products Industries Resource Centre Testimonials Contact Us FittingSoftware
Polyboard is a unique & powerful tool for designing and manufacturing built in furniture. This is true even for complex built in bedroom wardrobes. If you design internals only, internals with hinged  doors, or Mirror doors with aluminium profile frames,  Polyboard does it all: Compete cut-lists for both sheet boards, & aluminium profile lengths - all in 3D with 100% accurate costings for each component right down to the last screw!
Produce 100% accurate and complete cutlists for boards, glass/mirrors and aluminium profiles. While many specialist wardrobe programs produce nice looking pictures, and not very reliable cut-lists,  Polyboard in addition to allowing you to design wardrobes to custom requirements in 3D it also will give you a fully accurate cut-list that you can actually use in the workshop for: o Cutting internal timber parts o Cutting or ordering aluminium profile lengths o Cutting hanging rails to length o Cutting or ordering mirror or glass sheets Cut-lists are divided up by cabinet section such as internal, and doors and side panels separated, and each part can be named separately giving easy to understand cut-lists. Cut lists can be sent to be optimised in Opticut  in one click export and in a few seconds all board parts optimised on sheets, as well as aluminium extrusions, hanging rails also all optimised on standard profile lengths with easy to follow cutting diagrams.
Automatic complete detailed job costing reports: Detailed costings are automatically produced for all jobs in Polyboard: o  Panel materials are given a price per square meter and thereby a total cost for each material used in a job is calculated. o Bar Profiles (linear lengths) are given a price per meter and each different profile is separated and given a price such as door profiles track profiles and coat / dress hanging rails. o Edgebanding is given a price per meter and total length is added up and priced. o Each fitting down to very insignificant components such a screws are all costed and totalled including parts such as. adjustable shelf supports, drawer runners, hanging rail end brackets, and fixing screws are all priced and costed. In the cabinet list report, construction modules are listed, their parametric dimensions & number of units used in the job are listed as well. Units are priced as per the detailed costings. Grand totals are calculated for the entire job.

Easy Design of wardrobe Internals:

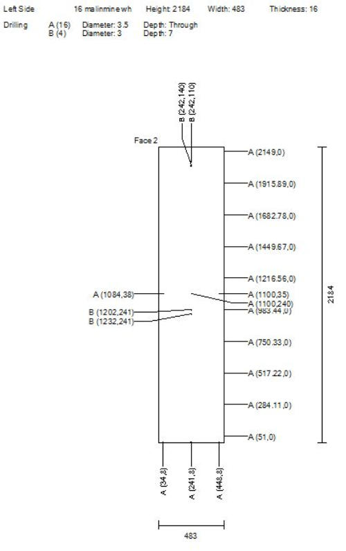
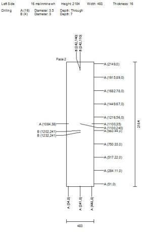
Wardrobe internals are easy in Polyboard. In fact this is what Polyboard does best - custom cabinet design! Add common internal wardrobe parts such as: o Dividing panels o Fixed and adjustable shelves o Drawers with either fully assembled boxes or partial i.e. with metal sides. o components such as hanging rails and end brackets Automatically produce detail dimensioned part drawings showing the location of all fixing holes and bracket holes. If you have a CNC machining centre these parts can be sent directly to your machine in standards formats for Weeke, Homag, Biesse, SCM as well as  standard 3D DXF drawings
3D Single part drawing, showing machining operations
2D dimensioned part drawing
Accurate parametric design of aluminium framed sliding doors: In Polyboard its easy to parametrically set up parts that are assembled. for example in our case of built-in wardrobes a common style is aluminium sliding doors are made up of a central glass/mirror panel and a four piece aluminium frame. Easily define through the sliding doors window the number of doors and the overlap between multiple doors. Using the assembly set-up window its also easy to define materials for the central panel and also the aluminium profiles that make up the frame around the glass. In Polyboard you also have the important option of overlaping the rails into the stiles or vice versa to get accurate cut-lists for the profile lengths. In Polyboard everything is designed in 3d on screen including assembled parts so you can verify your design dynamically as you make changes in real time
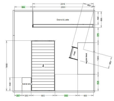
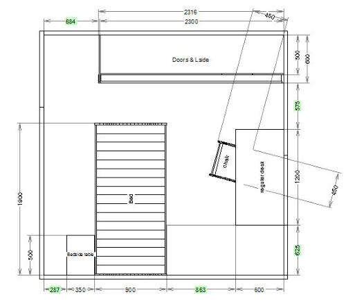
Shop drawings & renderings : Polyboard produces nice 3d rendered graphics that will demonstrate your designs to your customers. In addition to rendered views, manufacturing workshop drawing are also able to be generated fully dimensioned, either part or unit by unit or as a whole complete room. Polyboard also gives you the option of adding in your own dimensions to show special features of your designs i.e. space between cupboard and doorway or space between a cupboard and desk to show that there is adequate space move a chair around. Parts can be made semi-transparent to show wardrobe internals and there is also a feature to animate the opening and sliding of doors and drawers. 
Sliding door configuration window
Assembled part configuration window
Aluminium frame mirror doors modelled in Polyboard
Manufacturing shop drawings in both 3d and plan or elevation views are possible.
Plan view of Bedroom - Note extra user added room dimensions (green)
Animation feature for viewing thee opening of doors and drawers.
Drawing of individual units with customised views.
Complete wardrobe modeled and rendered.
Complete bedroom designed in Polyboard! Free Demo version Built-in wardrobes ~ Focus on Industry ~